XLS4型一体化分离机主要用于过滤处理(腐化)浆液。规格不同的XLS4机型是将XLS1、XLS2、XLS3按要求分别安装在全封闭的箱体内。当浆液流过细栅栅同时,所有固体杂质被分离取出。滤渣排出之前,经过滤渣压榨装置,脱水处理之后滤渣体积大量减少,然后卸入垃圾集装箱内。所有处理过程···
24小时咨询热线
0510-87831705
XLS4型一体化分离机主要用于过滤处理(腐化)浆液。规格不同的XLS4机型是将XLS1、XLS2、XLS3按要求分别安装在全封闭的箱体内。当浆液流过细栅栅同时,所有固体杂质被分离取出。滤渣排出之前,经过滤渣压榨装置,脱水处理之后滤渣体积大量减少,然后卸入垃圾集装箱内。所有处理过程是在一封闭系统内进行,因此无臭味外泄。此外,滤渣受到冲洗处理。含有有机物的冲洗水流回水渠。含有高浓度COD、BOD的液体流入生化反应池作进一步的处理。共有三种不同类型的分离机用于过滤浆液:
这类分离机效率高,结构紧凑,大处理量可达100立方米/小时。实践表明,这类机械运转十分稳定。精心设计和合理的生产工艺流程是机械连续稳定运行的前提。浆液过滤机的核心机械是细格栅机,其特点是处理量大、分离效率高、水力阻力小,设备内配有滤渣压榨装置/栅过滤机由全不锈钢制造,设计精巧,操作运转十分稳定;不受砂石等物料的影响。由清渣梳插入栅缝清理栅筐,达到百分之百的旋转自清洗效果。
带有螺杆过滤机的浆液过滤机,这类分离机处理效率高、结构紧凑、体积小、重量轻、安装移动方便,是处理较小污水量和粪便的设备。带有沉砂槽和排砂螺杆的一体化浆液过滤裝置。
整个装置系统可进行完整的二重过濾处理.并由以下部分组成:
细栅格栅机(过滤物压榨裝置)
提砂装置
按污水处理标准设计的捕砂装置。
以上一体化分离机型所有处理过程都集中在同一封闭箱体内,因此结构紧凑,占地少,无臭味外泄,是一个完整的浆液过滤处理过程。
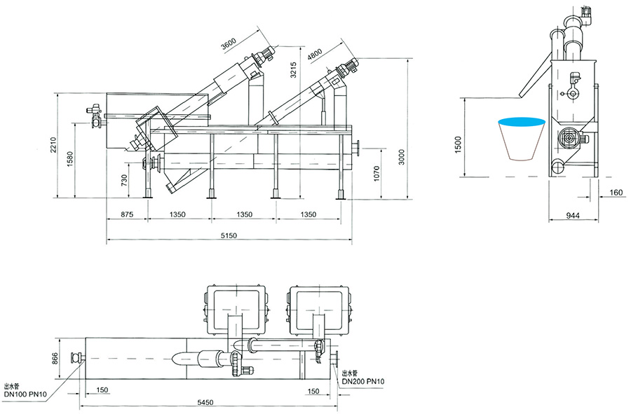
一体化分离机XLS4-1尺寸图


| 核心件型号 | 大处理量 | L0 | B | H | h1 | h2 | h3 | h4 | L1 | L2 | W1 | W2 | W3 | a1 | a2 | a3 | a4 |
| XLS4-1/800 | 100m³h | 1500 | 795 | 2388 | 1165 | 750 | 255 | 1682 | 150 | 150 | 557 | 120 | 60 | 200 | 1700 | 25 | |
| XLS4-1/1000 | 145m³h | 2101 | 1220 | 2608 | 1779 | 750 | 290 | 1926 | 250 | 250 | 986 | 215 | 25 | 140 | 830 | 25 | 1661 |
一体化分离机XLS4-2尺寸图


一体化分离机XLS4.3(带捕砂槽及XLS1/800)尺寸图
